3301 chippewa
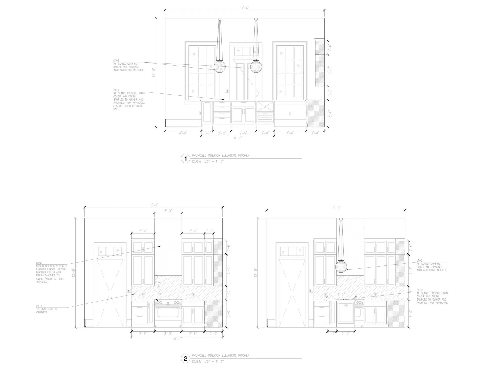
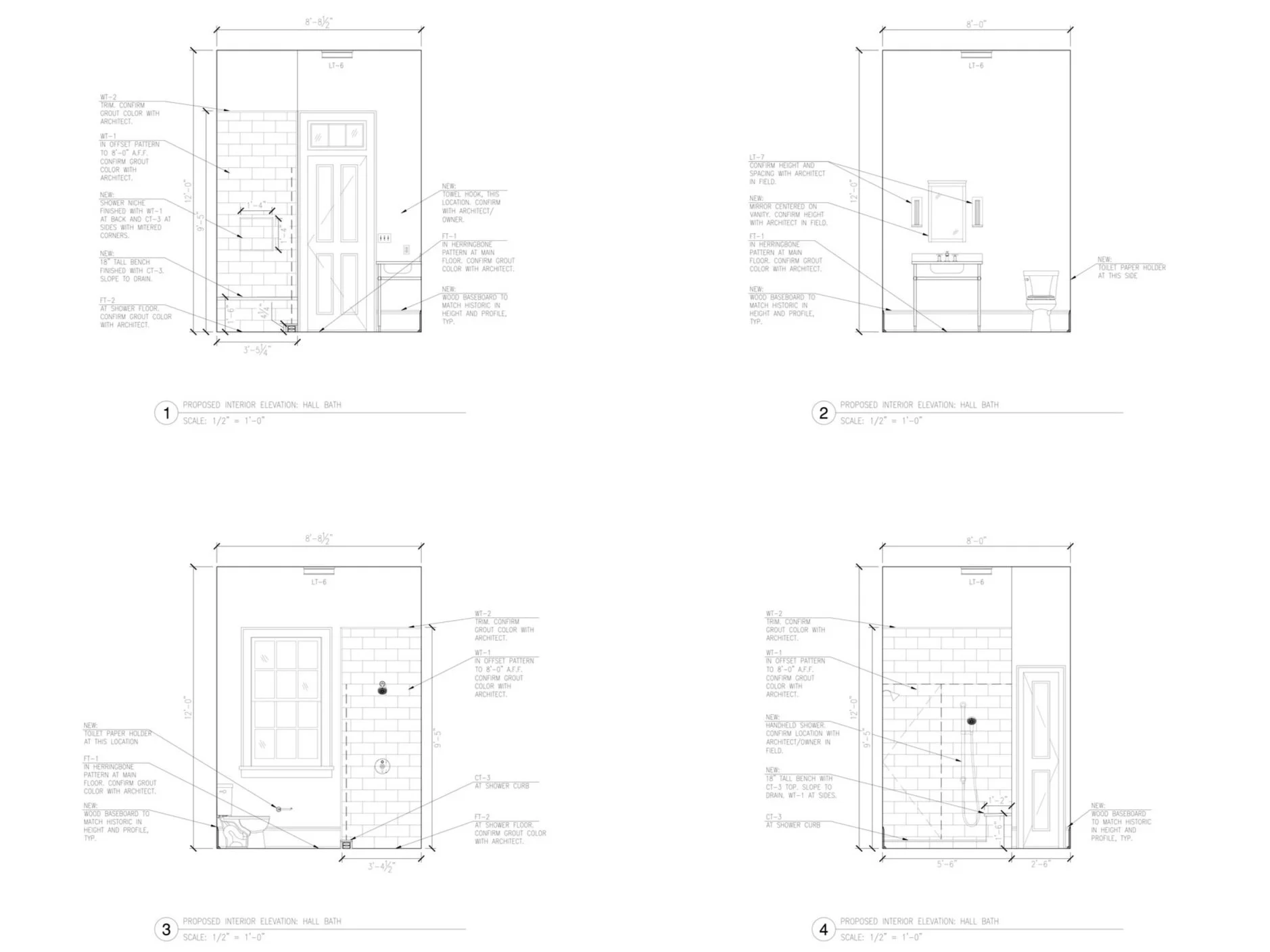
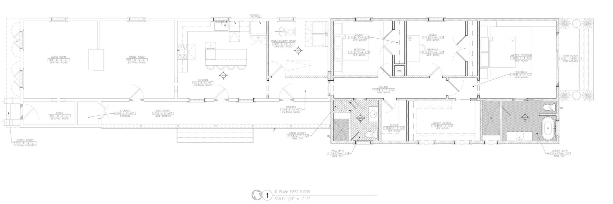
This sidehall shotgun was renovated for a young couple in the Marigny historic district of New Orleans. A one-story addition at the rear distinguishes from the original building through its simple, contemporary materials and finishes, from the exterior to the interior. The redesign features a spacious primary suite, two guest bedrooms, secondary bathroom, and ample storage at the addition, while the kitchen and laundry room were renovated in the historic front portion of the building.
Cassidy served as both the Architecture and Interiors Project Manager, seeing the project through from start to finish. Cassidy designed and permitted the project, complying with the city’s historic district guidelines. As the Interiors Project Manager, Cassidy worked with the clients to specify the interior finishes throughout the house, from the cabinetry to the decorative light fixtures, down to the grout colors and bathroom accessories.
Photography by ____. Architecture by Adamick Architecture. Construction by JLV Construction.




































